25640 State Road 70 E, Bradenton, FL 34202
Toggle Navigation
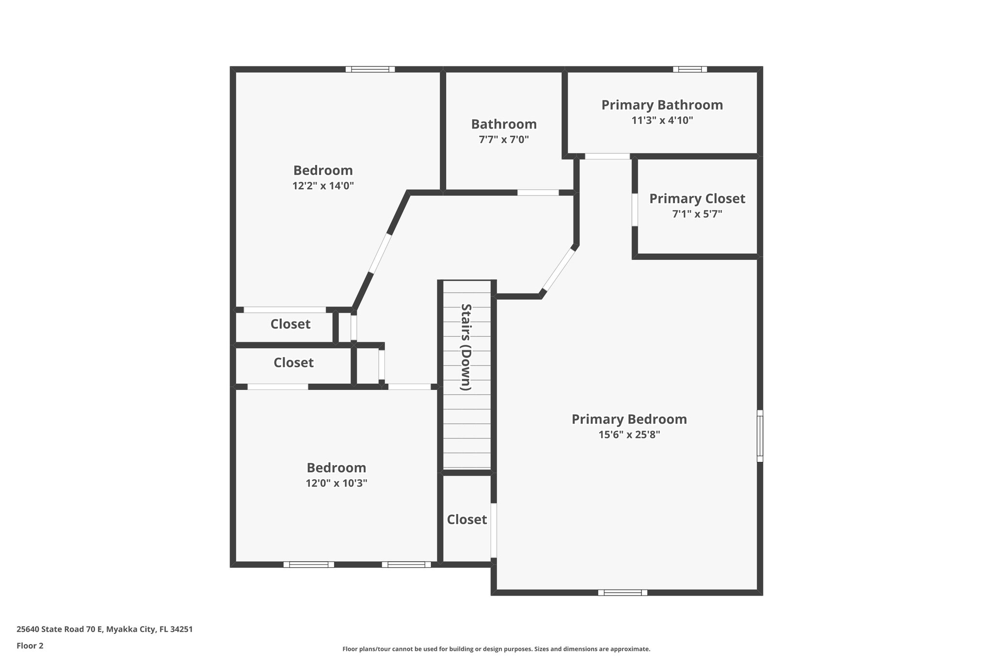
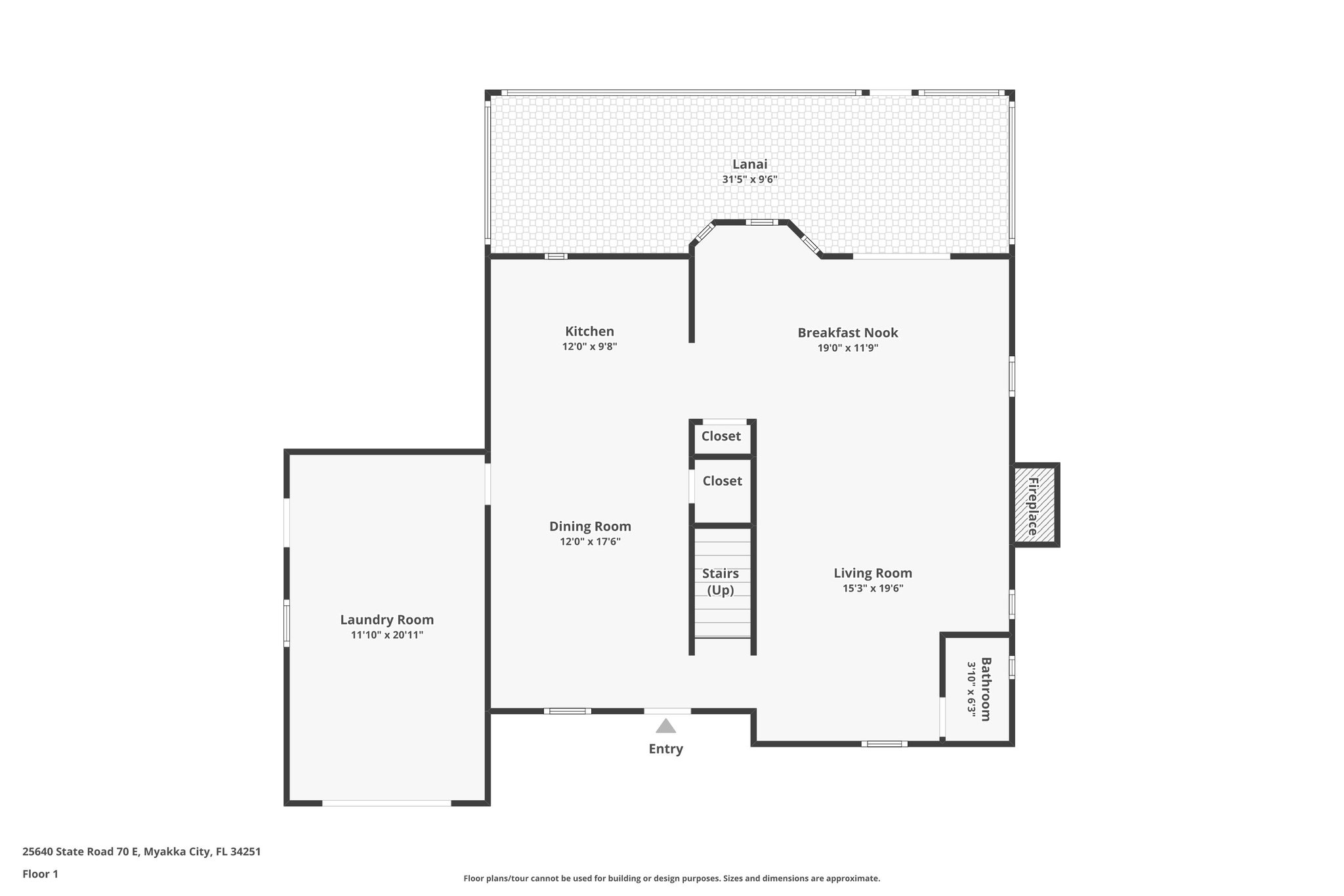
Floor Plans
3D Tour
Map
25640 State Road 70 E
Bradenton, FL 34202
Scroll to Content
Floor Plans
Slideshow
Photo Grid
Hide
Previous
Next
3D Tour